
Пеллетный котел 0.5 МВт в Барнауле
Цена 1 230 000 рублей с НДС
Автоматика полностью контролирует работу и безопасность котла
Подача топлива осуществляется с контролем производительности по заданной температуре
Автономная система пожаротушения
Котел для площади помещения от 3900 до 5500 м2, отапливаемый объем помещения от 11500 до 16500 м3. Температура 115 градусов.
Марка котла | Котел КВм ДО, Котел малой мощности | Бренд | HeatExpert |
---|---|---|---|
Максимальная тепловая мощность, кВт | 500 | Количество контуров | Одноконтурный |
Максимальная тепловая мощность, МВт | 0.5 | Размещение | Напольный |
Максимальная тепловая мощность, Гкал | 0.43 | Тип камеры сгорания | Закрытый |
Аэродинамическое сопротивление, Па (мм. вод. ст.) | 130 | Управление | Электронное |
Температура уходящих газов, °C | 220 | Принцип работы твердотопливного котла | Классический |
Расход теплоносителя среды, м³/ч | 18 | Энергонезависимый | нет |
Расход условного топлива, кг/ч | 79 | Тип питания | Трехфазное |
Масса, кг | 2750 | Встроенный циркуляционный насос | нет |
Низшая теплота сгорания топлива, кКал/м³ | 4900 | Встроенный расширительный бак | нет |
Влажность | 20 | Диапазон регулирования, % | 30-100 |
Расход топлива среднечасовой за отопительный сезон, кг/ч | 65 | Диапазон регулирования мощности, кВт | 150-500 |
Вид топки | Ретортная, Автоматическая | Фракция дробления, не более, мм | 6-10 |
Топливо | Твердотопливный, Пеллеты | Расход топлива при максимальной нагрузке котла, кг/ч | 113 |
КПД, не менее, % | 80 | Срок автономной работы до, суток | 1 |
Расход уходящих газов, м³/ч | 2750 | Срок автономной работы в среднем за отопительный сезон, суток | 8 часов |
Отапливаемая площадь, м² | 3900-5500 | Срок автономной работы при максимальной нагрузке котла, ч | 5 |
Отапливаемый объем, м³ | 11500-16500 | Разряжение в топочной камере, Па (мм. вод. ст.) | 20-40 |
Тяга | Уравновешенная | Водяной объем котла, л | 520 |
Температура воды, °C | 55 - 115 | Объем топочной камеры, м³ | 0.58 |
Давление рабочей среды, МПа (кгс/cм²) | 0.15-0.3 (1.5-3) | Объем штатного бункера, м³ | 0.8 |
Гидравлическое сопротивление при перепаде t, МПа (кгс/cм²) | 0.07 (0.7) | Объем штатного бункера (насыпная плотность 650 кг/м³), кг | 520 |
Габаритные размеры котельного блока, длина*ширина*высота, мм | 1950х1600х2500 | Размер топочной камеры, диаметр*глубина, мм | 900х1410 |
Габаритные размеры установки, длина*ширина*высота, мм | 3050х1600х2500 | Присоединительные размеры по водяному тракту, Ду | 65 |
Тип котла | Водогрейный | Присоединительные размеры газохода уходящих газов, ширина*высота / сечение, мм/м² | 600х200/0.12 |
Тип отопительного котла | Твердотопливный | Энергоэффективность | Высокая |
Это устройство работает со вспомогательным оборудованием, которое приобретается отдельно. Если вы хотите сразу узнать стоимость всей установки, добавьте заинтересовавшие вас позиции в корзину. Чтобы точно расчитать стоимость доставки до вашего объекта, укажите его адрес в корзине и оправьте нам заявку. Обычно мы отвечаем в течение дня.


Котел пеллетный автоматический 0.5 МВт с бункером
- мощность 500 КВт, 0,5 МВт, 0,43 ГКал;
- автоматическая подача древесных пеллет в топку;
- возможность работы в ручном режиме, для сжигания крупногабаритных древесных отходов;
- вихревая топка;
- температура нагрева воды 95 / 115 градусов;
- топливо – древесные пеллеты и древесные отходы;
- давление не более 0,6 МПа;
- отапливаемый объем от 11500 до 16500 м3 (в зависимости максимальной температуры в регионе эксплуатации). Проверить или подобрать мощность котла в вашем регионе вы можете по ссылке.
Отопительный котел на пеллетах автоматический 0.5 МВт применяется для сушильных камер, для теплиц, для производства, отопления промышленных помещений и зданий. Особенной популярностью данные модели пользуются у предприятий лесопереработки, деревоперерабатывающих предприятий и в сельском хозяйстве.
Твердотопливный котел на пеллетах 0.5 МВт устройство и описание
Котел твердотопливный на промышленных пеллетах 0.5 МВт изготавливается водотрубным стальным с вихревой топкой и автоматической шнековой подачей пеллет.
Конструкция котельной установки состоит из бункера для пеллетного котла, шнекового питателя, вихревой топки, котельного блока с конвективными пакетами.
Шнековый питатель подает топливные пеллеты и древесное топливо из расходного бункера в тепловой котел на пеллетах. Приводом питателя служит мотор редуктор. В конструкции шнекового питателя дополнительно предусмотрено воздушное охлаждение выходного узла, что препятствует возможности воспламенения топлива в питателе и увеличивает надежность работы.
Бункер для пеллет к котлу располагается на общей раме совместно с приводом питателя. Конструкция бункера под древесное топливо и узел соединения со шнековым питателем позволяет полностью опорожнять бункер за счет питателя топлива.
Водогрейный котел отопительный на пеллетах 0.5 МВт состоит из топочной камеры экранированной газоплотными сварными панелями с вертикальными трубами соединенных раздающими и собирающими коллекторами. Обмуровка выполняется из тепловой обшивки и декоративных листов. Выход газов осуществляется сзади и сверху топочного блока.
Котел отопления на пеллетах 0.5 МВт автоматический – принцип работы
Котел для отопления на пеллетах мощностью 05 МВт работает в полностью автоматическом режиме. Автоматика осуществляет автоматический розжиг, запуск, работу и остановку котла. Автоматика осуществляет подачу топлива с контролем производительности по заданной температуре теплоносителя. Подача воздуха осуществляется в зависимости от объема поданного древесного топлива. В котле на пеллетах из лузги подсолнечника предусмотрена автоматическая система пожаротушения в случае воспламенения топлива в топливопроводе.
Комплект автоматики состоит из щита управления котлом, контрольно измерительных приборов КИП и исполнительных механизмов.
Автоматическое регулирование работы промышленного котла российского производства на пеллетах мощностью 0.5 МВт включает в себя контроль и регулировку следующих параметров:
- разряжения в топочной камере;
- давления теплоносителя на выходе;
- температуры теплоносителя на выходе;
- содержания кислорода в дымовых газах;
- наличие давления в системе пожаротушения топливопровода;
- контроля факела;
- контроля минимального расхода теплоносителя.
На случай возникновения необходимости сжигания дополнительно крупногабаритных древесных отходов, автоматика комбинированного котла на пеллетах может переключиться в ручной режим работы и подача топлива осуществляется вручную через загрузочную дверку.
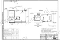
Схема подключения котла на пеллетах 0.5 МВт в котельной
Подключение и монтаж промышленного водогрейного котла на пеллетах 0.5 МВт с автоматической подачей пеллет производятся по проекту.
В зависимости от количества котельных агрегатов, наличия или отсутствия теплообменников существуют различные варианты схем подключения котла.
Один из вариантов схемы подключения твердотопливного котла 0 5 МВт для сжигания пеллет представлен на рисунке.
Купить котел на пеллетах 0.5 МВт в Барнауле и все необходимое для его подключения вы можете на нашем заводе. Также наш завод оказывает услуги по проектированию, монтажу, шеф монтажу и пуско-наладке котельных.
Преимущества производственного твердотопливного котла работающего на пеллетах
1. Работа котла отопительного на пеллетах происходит полностью в автоматическом режиме;
2. Для твердотопливного котла работающего на пеллетах возможно применение другого вида топлива: лузги, щепы, опилок;
3. Автоматическое пожаротушение топливоподачи;
4. Комбинированный котел на пеллетах работает с таким видом топлива как сырые опилки и древесные отходы высокой влажности (некоторые модели котлов на опилках не работают с древесным топливом влажностью более 20 %);
5. Вихревой режим горения обеспечивает максимальный дожиг топлива;
6. Незначительная стоимость сырья;
7. Экологическая чистота сырья как топлива.
Гарантии изготовителя
На заводе изготовителе промышленный российский котел на пеллетах 0,5 МВт с автоподачей подвергается гидравлическому испытанию давлением 0,9 МПа (9 кгс/см2).
Гарантийное обслуживание включает в себя бесплатное устранение скрытых заводских дефектов, замену деталей и узлов вышедших из строя в период гарантийного срока при условии монтажа и эксплуатации оборудования Покупателем в соответствии с его назначением, технической документацией, техническими нормами, правилами ввода в эксплуатацию и эксплуатации данного оборудования.
Срок эксплуатации водогрейного котла на пеллетах 10 лет. Котел имеет сертификат соответствия техническим регламентам ТР ТС 010, ТР ТС 032.
Действующая цена на котел на пеллетах 0.5 МВт в г Барнаул указана на сайте, производство котлов по техническому заданию завод осуществляет в течении 10-20 рабочих дней.
Купить Пеллетный котел 0.5 МВт в Барнауле
Промышленный водогрейный котел на пеллетах 0.5 МВт ( - мощность 0,5 МВт; - твердое топливо пеллеты; - температура 115 градусов; - отапливаемая площадь* от 3900 до 5500 м2; - отапливаемый объем* от 11500 до 16500 м3 (* диапазон для самого холодного и самого теплого региона РФ)); - применение для отопления производства, жилых зданий, цехов, складов, промышленных предприятий, теплиц, гаражей, больниц, школ, садов, для монтажа в блочно модульных котельных.
Предлагаем вам подобрать мощность водогрейного промышленного котла по отапливаемой площади и объему, с учетом типа строения и данных о температуре в регионе и в Барнауле, вида топлива.
Выбор водогрейного котла для котельной производится по каталогу отопительного оборудования нашего Котельного завода с помощью калькулятора подбора мощности. Водогрейные котлы отопления для промышленных предприятий предлагается выбрать из модельного ряда газовых, дизельных, мазутных, твердотопливных угольных и дровяных котлов, с ручными и автоматическими топками мощностью от 150 кВ до 4 МВт, и температурой нагрева теплоносителя до 115 градусов.
Подбор мощности водогрейного промышленного котла для отопления учитывает:
- температуру в самую холодную пятидневку в отопительный сезон. Для каждого региона РФ температура различна, данные берутся из СП 131.13330 «Строительная климатология»;
- тепло, необходимое для возмещения потерь тепла через ограждения, окна, двери здания и тепловые потери через не плотности строения и открываемые двери;
- температуру воздуха внутри помещений. Для различных типов и назначений строений она существенно отличается:
Тип отапливаемого строения | Температура внутри помещения |
---|---|
Жилые строения и административные здания | + 20 С° |
Больницы, детские сады | + 22 С° |
Учебные заведения, предприятия общепита, учреждения культуры, школы | + 16 С° |
Магазины и депо | + 15 С° |
Кинотеатры | + 14 С° |
Гаражи | + 10 С° |
Бани | + 25 С° |
- объем строения. Для определения наружного объема строения площадь по наружным стенкам строения на уровне первого этажа перемножается на высоту. Для панельных домов высота определяется: от уровня пола (нулевой отметки) до верхней плоскости теплоизоляционного слоя чердачного покрытия. Для остальных зданий высота определяется от уровня земли. Подбор мощности для отопления различных по назначению строений считается отдельно. Все полученные значения мощности складываются.
Подбор мощности водогрейного промышленного котла производится для общей суммарной мощности каждого отдельно стоящего задания.
Если вам требуется подобрать мощность котла в Барнауле для котельной с учетом вентиляции здания, горячего водоснабжения объекта, потерь в теплотрассе - необходимо производить более подробный расчет. Данный расчет мы можем произвести для вас бесплатно. Отправьте опросный лист и заявку на электронный адрес sale@kotel-kv.ru или позвоните по телефону 8 (800) 551-70-98.
комплект